System YAWAL TM 102HI jest dedykowany dla budownictwa energooszczędnego i pasywnego.
Sprawdzi się zarówno w budynkach użyteczności publicznej, jak również w zabudowie mieszkaniowej. Jest to rozbudowany system profili aluminiowych służący do wykonywania nowoczesnych typów okien i witryn wymagających wysokiej izolacji termicznej.
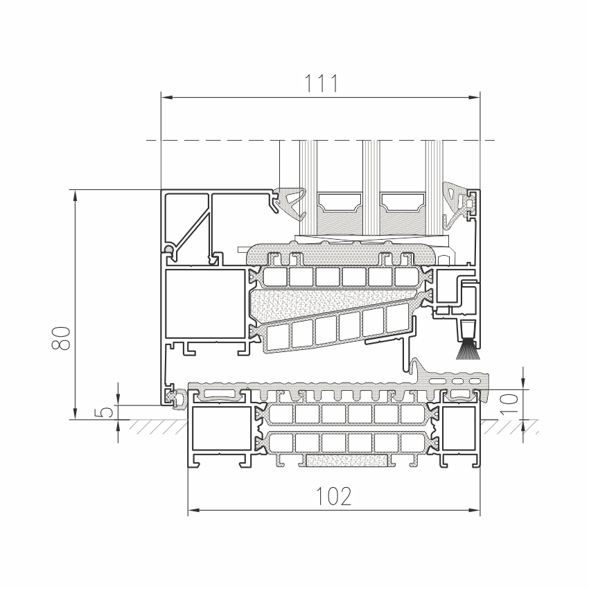
Nowatorska konstrukcja skrzydła okiennego z zastosowanym izolatorem ustawionym pod kątem w stosunku do obudowy zapewnia korzystny układ sił w profilu. Pozwoliło to na uzyskanie profili o wysokiej wytrzymałości umożliwiających tworzenie konstrukcji o dużych gabarytach i ciężarze. W ramach systemu oferujemy szeroki zakres szklenia oraz możliwość montażu wszystkich typów szyb dwu- i trzykomorowych dostępnych na rynku.
Zalety systemu
-
doskonały poziom energooszczędności Uf = od 0,45 W/m2K oraz bardzo wysoka wodoszczelność dzięki zastosowaniu innowacyjnej konstrukcji uszczelki centralnej,
-
doskonały poziom izolacji akustycznej potwierdzony badaniami,
-
nowoczesny design profili zatrzaskowych w połączeniu z nowymi uszczelkami – możliwość uzyskania jednej płaszczyzny na linii aluminium – uszczelka,
-
możliwość wykonania profilu odwracającego szklenie,
-
możliwość tworzenia konstrukcji o dużych powierzchniach,
-
możliwość wykonania drzwi balkonowych z niskim progiem oraz narożnika całoszklanego,
-
dodatkowa izolacja wiatroszczelna dzięki zastosowaniu uszczelki na styku listwy szklącej profilu,
-
umożliwia wykonanie nowoczesnych drzwi, zapewniając doskonałą izolację termiczną,
-
możliwość wykorzystania pełnej gamy okuć dostępnych na rynku: nawierzchniowych, ukrytych, pod rowek typu PCV, klamki trzpieniowe o dowolnym kształcie, klamki nierdzewne.
Parametry techniczne
| OKNA | DRZWI | |
| Izolacyjność termiczna EN 10077-2 | Uw od 0,58 W/m²K | Uw od 0,7 W/m²K |
| Izolacyjność akustyczna EN ISO 140-3 | Rw = 39 ÷ 48 dB | Rw = 39 ÷ 48 dB |
| Przepuszczalność powietrza EN 12207 | Klasa 4 | Klasa 4 |
| Wodoszczelność EN 12208 | E1800 | E750 |
| Odporność na obciążenie wiatrem EN 12210 | Klasa C5/B5 | Klasa C5/B5 |
| Odporność na włamanie EN 1627 | RC2 | RC2 |
Charakterystyka systemu
| OKNA | DRZWI | |
| Głębokość konstrukcyjna ościeżnicy | 102 mm | 102 mm |
| Głębokość konstrukcyjna skrzydła | 111,4 mm | 102 mm |
| Grubość wypełnienia | 35 ÷ 72 mm | 35 ÷ 72 mm |
| Maksymalne wymiary skrzydła L x H | 1600 x 3000 mm | 1400 x 3000 mm/ 2400 x 3000 mm |
| Maksymalny ciężar skrzydła | 180 kg | 250 kg |
| Typ konstrukcji | okno stałe, rozwierne, uchylne, rozwierno-uchylne | drzwi jednoskrzydłowe, dwuskrzydłowe, z naświetlami i doświetlami |











